Quadrilocale in vendita

Napoli, Vico Sant'erasmo - Gianturco
€ 249.000
4 locali 4 locali
110 Mq 110 Mq
2 bagni 2 bagni

Quadrilocale in vendita

Napoli, Vico Sant'erasmo - Gianturco

Descrizione annuncio

SANT'ERASMO - VIA MARINA

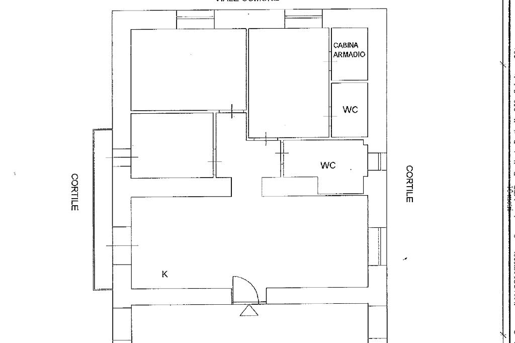
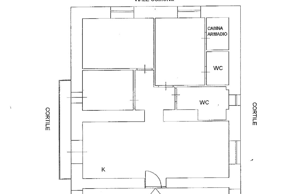
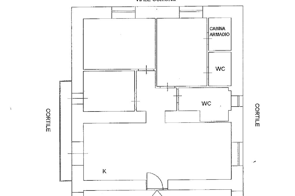
A pochi passi dalla stazione Centrale Di Napoli, situato in una posizione strategica e tranquilla, noi di Tecnorete Poggioreale proponiamo in vendita un prestigioso appartamento, di circa 100 mq, frutto di una ristrutturazione totale e curata nei minimi dettagli, ultimata nel 2024. L’immobile si distingue per le finiture di pregio e una distribuzione degli spazi ottimizzata per la vita contemporanea. La soluzione è ideale per chi cerca una casa 'chiavi in mano'.

La soluzione, all'interno di un parco, è posta ad un primo piano di uno stabile che gode di ascensore ed è così composta: ingresso in una splendida zona living con cucina a vista, disimpegno, 3 camere da letto, di cui la principale dotata di servizio e cabina armadio. Oltre al bagno in camera, l'appartamento dispone di un secondo bagno finemente rifinito con materiali di ultima generazione.

La soluzione gode di tripla esposizione, di cui una tramite un ampio balcone, garantendo all'intero appartamento luce solare diretta per tutto l'arco della giornata.

L'immobile è dotato di una piccola cantina di proprietà, un valore aggiunto fondamentale, che offre uno sapzio extra comodo e versatile.

A completare il tutto, è il posto auto riservato, elemento sempre più richiesto che garantisce comodità, sicurezza e la certezza di avere un parcheggio disponibile senza stress, soprattutto in zone ad alta densità abitativa.

Mostra tutto

Nelle vicinanze

Trasporto pubblico Trasporto pubblico
Garibaldi
Garibaldi
1,3 Km
Università
Università
2,4 Km
Via Gianturco
Via Gianturco
340 m
Napoli Gianturco
Napoli Gianturco
1,0 Km
Trasporto pubblico
700 m
Ricariche auto elettriche Ricariche auto elettriche
EnelX EVA+ Ferraris Napoli
520 m
EnelX Fast Bourelly Car Service
1,5 Km
Scuole Scuole
Istituto Universitario Orientale - Residenza
220 m
IC 31 P.Borsellino - Plesso Nobile
840 m
Scuole
910 m
Asilo Nido Marcellino
950 m
IC 31 P.Borsellino
1,0 Km
Farmacia Farmacia
Farmacia
920 m
Leone
1,2 Km
Farmacia del Carmine
1,3 Km
Parafarmacia
1,9 Km
Farmacia San Francesco
2,0 Km
Ospedali Ospedali
Ospedale Santa Maria di Loreto Mare
1,0 Km
Presidio Ospedaliero "SS.Annunziata"
1,6 Km
Presidio Ospedaliero Card.Ascalesi
1,7 Km
ASL NA1 Poliambulatorio
1,7 Km
ex Ospedale della Pace (Comune di Napoli - Municipalità IV)
1,9 Km
Supermercati Supermercati
Supermercati
320 m
Despar
980 m
Todis
1,2 Km
sigma
1,5 Km
MD
1,7 Km
Negozi Negozi
Negozi
930 m
Sapori&Dintorni Conad
1,1 Km
Z
1,2 Km
Tezens
1,2 Km
Calzedonia
1,2 Km
Bar Bar
Chalet Ciro 1952
1,2 Km
Time Café
1,2 Km
The Wall
1,4 Km
Roma
1,4 Km
Coffee Time
1,4 Km
Ristoranti Ristoranti
Eccellenze Campane
290 m
Masardona
890 m
Tutino
1,2 Km
Hostaria Mediterraneo
1,2 Km
Caseificio Marigliano
1,2 Km
Mostra tutto

Caratteristiche

Rif.:
61204639
Piano:
1 di 5 con ascensore (Piano basso)
Posti auto:
1
Balconi:
1
Camere da letto:
3
Arredamento:
Parziale
Mostra tutto
Prezzo Prezzo
€ 249.000
Rata mutuo Rata mutuo
€ 1.188 / mese
Spese annue Spese annue
€ 900
Proponi il tuo prezzoProponi il tuo prezzo

Classe Energetica

F
F
F
F
F
F
F
F
F
EP globale non rinnovabile:
175.00 kW h/m² anno
EP globale rinnovabile:
175.00 kW h/m² anno
EP invernale del fabbricato:
EP estiva del fabbricato:
Anno di costruzione:
1990
Riscaldamento:
Autonomo
Tipo impianto:
A radiatori
Tipo alimentazione:
Metano

Ti interessa visionare l'immobile?

Fissa un appuntamento  Fissa un appuntamento

Richiedi informazioni

Clicca su Leggi per aprire l'informativa
* Questi campi sono obbligatori

Calcola il tuo mutuo

Semplice e senza impegno
Anticipo

( % )
Mutuo

( % )

pochi semplici passi

inserisci i tuoi dati
Questionario completato
Grazie per aver richiesto un appuntamento senza impegno con un nostro Consulente del Credito e Assicurativo.

Hai inserito correttamente tutti i dati necessari e a breve riceverai una e-mail con un link da convalidare per inviare i tuoi dati.
Affiliato
Cometa Immobiliare Srl
Via Nuova Poggioreale, 43/G 80133 Napoli (NA)

Il nostro staff


  • Gennaro Brescia
    Affiliato

  • Angelo D'Alessandro
    Collaboratore

  • Daniele Gallinaro
    Responsabile

  • Simone Marzocchella
    Collaboratore

  • Mattia Parlato
    Collaboratore

  • Elena Provenzano
    Coordinatrice

  • Gennaro Scozio
    Collaboratore
Via Nuova Poggioreale, 43/G 80133 Napoli (NA)
Zona: Stadera-Poggioreale-Gianturco
Mostra su mappa
Orari: 9:00 - 20:00
Affiliato
Cometa Immobiliare Srl
Via Nuova Poggioreale, 43/G 80133 Napoli (NA)

2026 Tecnocasa Franchising S.p.A. - P. IVA 08365160152 - Via Monte Bianco 60/A 20089 Rozzano (MI). Ogni agenzia ha un proprio titolare ed è autonoma. Privacy policy | Policy utilizzo | Cookie policy